ガーデン千歳船橋 101号室 世田谷区船橋[マンション]

ガーデン千歳船橋 101号室 世田谷区船橋[マンション]

マンション[世田谷区船橋]

清照経堂店「経堂の賃貸物件検索サイト」

  • 03-5799-3600
  • 9:30~19:00/定休日:毎週水曜日、第2・第4火曜日

会員の方

閉じる

物件詳細

ガーデン千歳船橋 101号室 世田谷区船橋[マンション]

 

ガーデン千歳船橋 101号室 世田谷区船橋[マンション] の物件詳細ページです。

物件種別: マンション

お問い合わせ番号:0000016391

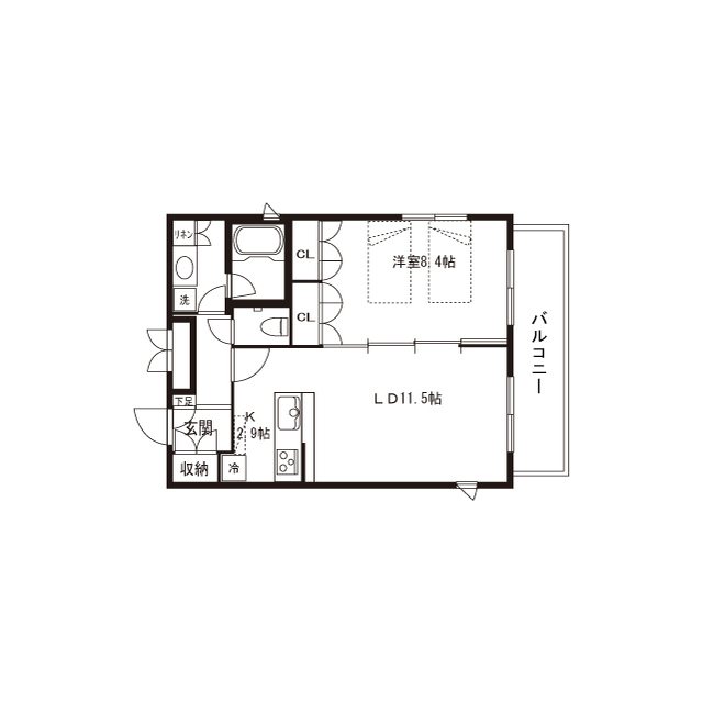
間取り(面積)

1LDK

( 52.1㎡ )

賃料(管理費等)

17.0万円

( 8000円 )

交通: 小田急線 千歳船橋駅 徒歩8分

敷金/礼金: 1ヶ月 / -

保証金/敷引/償却金: - / - / -

所在地: 世田谷区船橋

築年月: 2009年2月

ポイント

2009年築のモニタ付きオートロック&宅配BOX完備RCマンション!
専用テラス付き

問い合わせ(無料)

TEL: 03-5799-3600

お問い合わせ番号: 0000016391

QRコード

資料請求などはこちら

問い合わせ(無料)

TEL: 03-5799-3600

お問い合わせ番号: 0000016391

スタッフからのコメント

こちらの物件は先行申し鋳込み後、先行契約となります

セールスポイント

特徴 防犯カメラ,外壁タイル張り,閑静な住宅街,緑豊かな住宅地,ワイドバルコニー,オートロック,モニタ付オートロック,2面採光,陽当たり良好,眺望良好,通風良好,保証人(不要)
設備 エレベーター,24時間ゴミ出し可,敷地内ゴミ置き場,宅配BOX,システムキッチン,対面式キッチン,カウンターキッチン,3口以上コンロ,ガスキッチン,バス・トイレ別,バス有,オートバス,追い焚き風呂,浴室乾燥,脱衣所,シャワー,トイレ有,温水洗浄便座,洗面台,洗面所独立,洗面所にドア,洗面化粧台,三面鏡付洗面化粧台,シャワー付洗面台,エアコン,エアコン2台,光ファイバー,インターホン,TVインターホン,給湯,ガス給湯,フローリング,全居室フローリング,室内洗濯機置場,洗濯機置場,クローゼット,シューズボックス,ガス(都市ガス),下水(公共下水),水道(専用メーター),電気
光ファイバー エレベーター 1基
天井高 空調 2基
部屋外設備 バルコニー
駐車場 駐車場:有(敷地内) 27500円/月~ 駐輪場:有 バイク置き場:有
周辺施設 コンビニ:セブンイレブン 世田谷経堂3丁目店 290m
コンビニ:スリーエフ 世田谷船橋店 523m
ホームセンター:ビーバートザン経堂店 581m
スーパー:ローソンストア100 千歳船橋駅北店 652m
スーパー:OdakyuOX千歳船橋店 781m
スーパー:まいばすけっと経堂2丁目店 727m
中学校:私立恵泉女学園中学校 544m
小学校:世田谷区立経堂小学校 907m
小学校:世田谷区立桜丘小学校 1270m

物件概要

物件名 ガーデン千歳船橋 101号室
物件所在地 東京都世田谷区船橋5丁目1-8 周辺地図
交通機関 小田急線 千歳船橋駅 徒歩8分
小田急線 経堂駅 徒歩13分
京王線 桜上水駅 徒歩27分
間取り詳細 洋室(9.1畳) LDK(12.2畳)
専有面積 52.1㎡
所在階/地上階数 1 / 5 部屋向き 西
建物構造 鉄筋コンクリート 築年月 2009年2月
賃料 17.0万円 管理費等 8000円
敷金 1ヶ月 礼金 -
保証金 - 更新料 新賃料 1ヶ月
積増し敷金 - 積増し理由
その他一時金 鍵交換代:27,500円 24時間サポート:16,500円 その他費用
損害保険 有 料金:20000円 損保期間:24ヶ月 
契約形態 普通借家契約 期間 契約期間:2年
保証会社 必須 初回保証委託料:賃料総額の50%、月次保証料家賃等の1% 保証人代行 必須
現況 居住中 入居時期 予定 2026年8月下旬
入居条件 ペット(不可),楽器等の使用(不可),子供(可),二人(可)

その他

取引態様 仲介先物 自社管理番号 0000016391
情報更新日 2026年4月25日 次回更新予定日 2026年5月2日
不動産会社コード 2103788 物件管理コード 1133480811230000014140
  • ※間取りの「S」はサービスルーム(納戸)です。
  • ※QRコードは(株)デンソーウェーブの登録商標です。

資料請求などはこちら

問い合わせ(無料)

TEL: 03-5799-3600

お問い合わせ番号: 0000016391

お問い合わせ先:株式会社清照 経堂店

所在地 : 東京都世田谷区経堂1丁目25-19
TEL : 03-5799-3600
免許番号 : 東京都知事(7)第71434号
加盟団体 : (公社)首都圏不動産公正取引協議会加盟 公益社団法人全日本不動産協会 東京都本部

この部屋を見学予約

ホームへ戻る